Utställarinformation

Vattenstämmans utställning är anpassad efter Umeå Folkets Hus lokaler och rymmer ca 36 utställarplatser på två plan.

Samtliga personer som vistas på konferensen och dess utställning måste vara registrerade och bära namnskylt.


Utställarpaket inkl 1 person

Företagspartner 22 0000 kr
Medlem 22 000 kr
Ej medlem 30 000 kr
Statliga aktörer och intresseorganisationer 22 000 kr
Värdkommun 0 kr

Extra personal

Deltagare Pris/person
Företagspartner 8 600kr
Medlem 6 000kr
Ej medlem 12 000kr
Statliga aktörer och intresseorganisationer 5 000kr
Värdkommun 3 950kr
   
Social program Pris/person
Bankettmiddag 23 maj 995kr

Alla priser presenteras exklusive moms.

I utställarpaketet ingår följande


Preliminär utställarritning

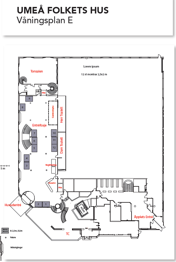
Utställningen rymmer ca 36 monterplatser och kommer att äga rum på entréplan samt på plan 1 där konferenslokalen ligger på Umeå Folkets Hus. 

Alla montrar är öppna utställarytor utan väggar. Lokalen har fönster längs ytterväggarna.
För att se bild av lokalen på entréplan klicka här
För att se bild av lokalen på plan 1, klicka här & här.

Entréplan - utställarplatser nr 1-12
Klicka på bilden för att få upp ritningen i ett större format.

 

Plan 1 - utställarplatser nr 13-36
Klicka på bilden för att få upp ritningen i ett större format.

 

 

Vänligen notera att slutlig utställarplats bekräftas ca 1 vecka före konferensen.


Lunch under konferensen

I år kommer det att serveras en sittande lunch den 23 maj och en stående mingellunch hos utställarna den 24 maj efter avslutat program i föreläsningssalen.


Hur anmäler vi oss?

Klicka på fliken Anmälan i menyn och välj önskad kategori för att komma till anmälningssidan. 


Information inför deltagande


Utställningens preliminära öppettider
Tisdag 23 maj, 08.00-17.00 (registrering och kaffe mellan kl. 08.00-09.45 då programmet startar)
Onsdag 24 maj, 08.00-13.30 (programmet börjar kl. 08.30)

Vänligen respektera och plocka inte ihop era montrar förrän efter avslutat program den 24 maj.

Inflyttning (tiderna är preliminära)
Måndag 22 maj kl. 12.00-17.00
Tisdag 23 maj kl. 07.00-08.00

Utflyttning
Onsdag 24 maj kl. 13.30-17.00

 

Inflyttning/Utflyttning
Alla föremål som hyresgästen har fört in till Umeå Folkets Hus måste vara bortförda senast fredag 26 maj kl. 14.00. Om detta inte fullgörs får Umeå Folkets Hus bortföra föremålen på utställarens bekostnad och risk. Ta med godset direkt eller packa ihop det, märk det med fraktsedlar och lämna i montern för hämtning. Viktigt att fraktsedlar är fasttejpade på godset och att godset står på en fraktpall. Transport av gods från mässan beställs av utställaren, gods ska vara försett med fraktsedel på alla kollin och vara väl förpackat. Som avsändare skall stå företaget som beställer transporten (ej Umeå Folkets Hus). Observera att det inte är tillåtet att fästa med häftkuddar, dubbelhäftande tejp eller spikar på väggar, pelare eller monterväggar. Vi rekommenderar istället kontorstejp, frystejp eller häftmassa. Om det skulle bli märken ersätter Utställande företag anläggningen för eventuella kostnader. Det finns möjlighet att lagra tomemballage under mötet.

Utställaren får ej låna inventarier utan medgivande. Fasta installationer såsom ljus, ljud, byggnationer får enbart justeras efter godkännande från Umeå Folkets Hus Om något justeras ska det alltid återställas i ursprungligt skick innan avresa. Om ej detta sker debiteras utställaren en hanteringskostnad för återställande. Tänk på att alltid fråga personalen på plats om ni är osäker över något. Umeå Folkets Hus tillhandahåller hjälpmedel som pallyft, stegar samt pirror.

Om ni behöver ytterligare tid för uppbyggnad eller nedmontering, vänligen meddela Travel Team på svensktvatten@travelteam.se.

Monterservice
Beställningar av extra montermaterial & frågor gällande montern hanteras av Camilla Persson på Umeå Folkets Hus.
För att se prislista och beställa extra material till din utställaryta vänligen klicka här.

Kontaktperson: Camilla Persson
E-post: camilla.persson@umeafolketshus.se

Leveranstid/Godsmottagning
Gods kan tas emot tidigast onsdag 17 maj kl. 08.00
Upphämtning senast fredag 26 maj, kl. 14.00.

Leverans- & hämtningsadress
Större gods
Umeå Folkets Hus
Vasagatan 15
903 29 Umeå

Mindre gods
Umeå Folkets Hus
Skolgatan 59
903 29 Umeå

OBS! alla gods måste märkas med:

Ankommande gods
Gods som kommit Umeå Folkets Hus tillhanda kommer att levereras till monterplatsen på ankomstdag. 

Avgående gods
Ni som utställare ansvarar själva för att packa ihop ert material och att beställa hämtning av ert gods, godset lämnas packat med fraktsedel i utställarytan.
Returfraktsedlar ska finnas utskrivna i förväg. Saknas returfraktsedel kommer hantering debiteras utställare. Beställning av frakt görs av utställaren, inom två arbetsdagar måste godset vara hämtat, därefter debiteras utställaren uppställningskostnad baserat på godsets volym.

Parkering
I fastigheterna brevid Umeå Folkets Hus finns två P-hus, Nanna och Navet. Notera att det inte går att köra via Vasaplan ( framsidan av Umeå Folkets Hus) då denna yta är reserverad för lokaltrafiken.
Klicka här för att se en karta.

Allmän information
Mått hissen till Teaterfoajén (varuhissen): 1,20 m bred x 3,40 m lång x 2,10 m hög, Maxvikt 2 500kg
Mått hissen vid receptionen/konferensservice: 0,85 m bred x 2,10 m lång x 2,10 m hög, Maxvikt 1 125kg
Port mellan varuintag och sidoscenen IDUN:  2,65 m bred x 3,9 m hög
Lastintaget är 18 m djupt, 4,5m högt och full fordonsbredd 4,35 m. Transporter ska lastas av mot laskaj med bakgavellyft.

Förtäring och dryck
All servering och försäljning av mat, inklusive frukt och dryck handhas av Umeå Folkets Hus. Arrangören äger inte rätt att anlita annan leverantör eller själva ombesörja eller hantera livsmedel/dryck inom leverantörens byggndes eller markområden. Undantaget är papper eller plastinslaget reklamgodis som bjuds vid utställningen. Dessa regler följer gällande lagstiftning rörande livsmedel och alkohol och är avsedda för att garantera hög kvalitet och god säkerhet för gästerna. 

Det inte är tillåtet att ta med egen alkoholhaltig dryck, mat eller råvaror till er monter.
SVänligen respektera att nötter är strängt förbjudet och vi ber er ta hänsyn till eventuella luftburna allergier för tex. citrusfrukter.
Vid frågor eller funderingar kring detta vänligen kontakta svensktvatten@travelteam.se.

Renhållning/Sopor
Utställare ansvarar själv för städning i den egna utställningsytan. 
Umeå Folkets Hus sköter allmän renhållning av lokalerna. Med allmän renhållning avses normalrenhållning. Exempelvis ingår EJ skräphantering i större mängder, samt grovstädning efter byggnationer eller dylikt. Hyresgästen ombesörjer den behövliga renhållningen av sin medtagna utrustning, utställningsobjekt, montrar och liknande. Umeå Folkets Hus hanterar normalt avfall från hyresgästen. Med normalt menas avfall som ryms i en container som finns vid lastentrén. Vid mer avfall debiteras kostnaden hyresgästen.

Affischering/Skyltning
Det är ej tillåtet att sätta upp material/affischer på annat än i sin egen monter. Tejp får EJ användas. Skulle detta ändå ske betalas eventuella skador av Utställande företag. Snören, vajrar eller liknande som används för upphängning ska plockas ner av utställaren innan avflyttning, om ej detta sker debiteras en hanteringskostnad.

Säkerhet/Försäkring
Umeå Folkets Hus ansvarar ej för skada och stöld av utrustning i monter. Utställare ansvarar själva för att teckna eventuella försäkringar för sin utrustning.
Varken Svenskt Vatten, Umeå Folkets Hus eller Travel Team Sweden AB ansvarar för skada eller förlust av material och utrustning. Alla typer av glas och flaskor, burkar och andra hårda föremål, laserpekare, trycksatta behållare, kedjor, knivar, vapen, bengaliska eldar, fyrverkeripjäser och andra former av pyrotekniska föremål, samt allt övrigt som kan orsaka personskada är förbjudet att införa på Umeå Folkets Hus.

Utställaren ansvarar själv för sitt material/utrustning. Om speciellt värdefull eller ömtålig utrustning används i samband med utställning rekommenderar vi att utställaren beställer bevakning av utrustningen. Utställaren ansvarar för tecknande av försäkringar av sin utrustning. 

Brandsäkerhet
Monterväggar, tak, skyltar och tyger skall utföras i svårantädligt, brand klassat material. Ej tillåtet material är tex. wellpapp och styren skrivor. Stearin, värmeljus eller brinnande lyktor är inte tillåtna, såvida inte av Umeå Folkets Hus godkänd brandvakt är tillsatt. Skydds- och brandinspektion kan ske innan utställningen eller mötets öppnande varvid utställare kan bli anmodad att avlägsna ej tillåten byggnation eller föremål av ej tillåtna material.

Hjärtstartare
Två stycken hjärtstartare finns att tillgå på Umeå Folkets Hus. En i receptionen och en på IDUN.

Brand
Brandvarnare finns i alla utrymmen. 
Samlingsplats vid brand är direkt utanför huvudentrén.
För mer information klicka här


Med reservation för ändringar.